Galeria zdjęć










Opis projektu
MDDOM 41 to energooszczędny dom rekreacji indywidualnej budowany w technologii szkieletowej MDDOM®.
Jest to dom z poddaszem użytkowym w konstrukcji nowoczesnej stodoły, który jest ciekawą alternatywą dla mieszkania w bloku.
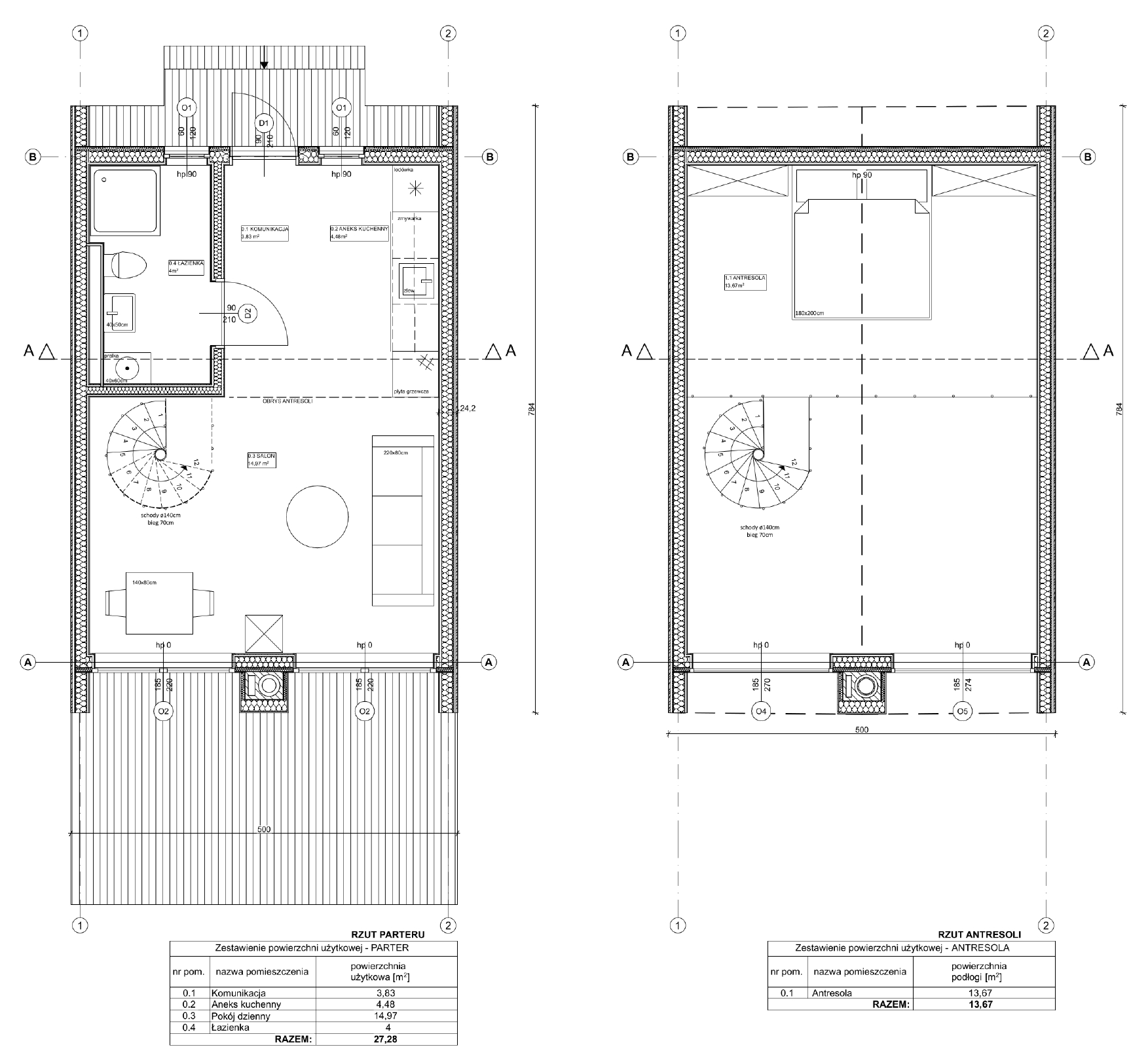
Prezentujemy projekt MDDOM 41, który jest domem rekreacji indywidualnej. W projekcie przewidziano przestronny salon z otwartą kuchnią wraz z toaletą. Zawiera on również antresolę.
Projekt MDDOM 41 charakteryzują duże przeszklenia gwarantujące sporo naturalnego światła wewnątrz domu, a także nowoczesne wzornictwo i wygoda użytkowania.
Wymiary zewnętrzne: 5 x 7,84 m
Powierzchnia użytkowa: 36,13 m2
Powierzchnia podłóg: 40,95 m2
Powierzchnia zabudowy: 34,83 m2
Wysokość budynku: 650 cm
Wysokość parteru: 234 cm
Wysokość na antresoli: 240 cm
