Galeria zdjęć










Opis projektu
MDDOM 44 v 1 to energooszczędny dom budowany w technologii szkieletowej MDDOM®.
Jest to dom z poddaszem użytkowym w konstrukcji nowoczesnej stodoły, który jest ciekawą alternatywą dla mieszkania w bloku.
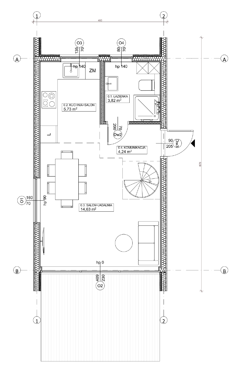
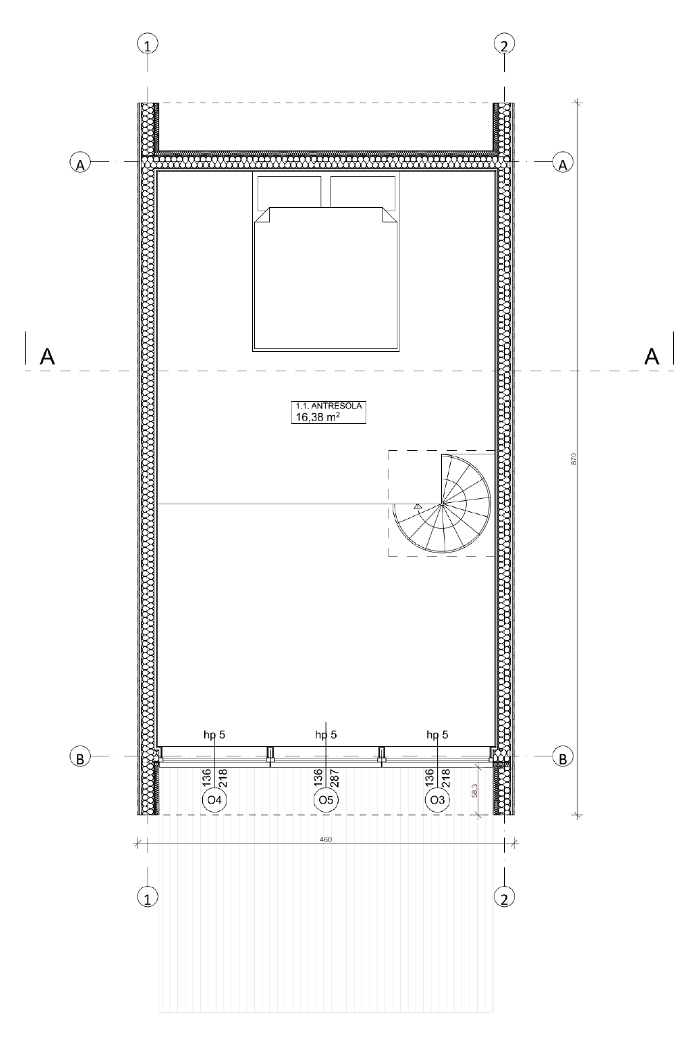
Projekt MDDOM 44 v 1, który jest domem rekreacji indywidualnej. W projekcie przewidziano przestronny salon z otwartą kuchnią wraz z toaletą. Zawiera on również antresolę.
Projekt MDDOM 44 v 1 charakteryzują duże przeszklenia gwarantujące sporo naturalnego światła wewnątrz domu, a także nowoczesne wzornictwo i wygoda użytkowania.
Wymiary zewnętrzne: 4,6 x 8,7 m
Dom rekreacji indywidualnej
Powierzchnia użytkowa: 38,01 m2
Powierzchnia podłóg: 44,7 m2
Powierzchnia zabudowy: 35,26 m2
Wysokość budynku: 630 cm
Wysokość parteru: 234 cm
Wysokość na antresoli: 228 cm
