Galeria zdjęć












Opis projektu
MDDOM 50 to energooszczędny dom budowany w technologii szkieletowej MDDOM®.
Jest to dom z poddaszem użytkowym w konstrukcji nowoczesnej stodoły, który jest ciekawą alternatywą dla mieszkania w bloku.
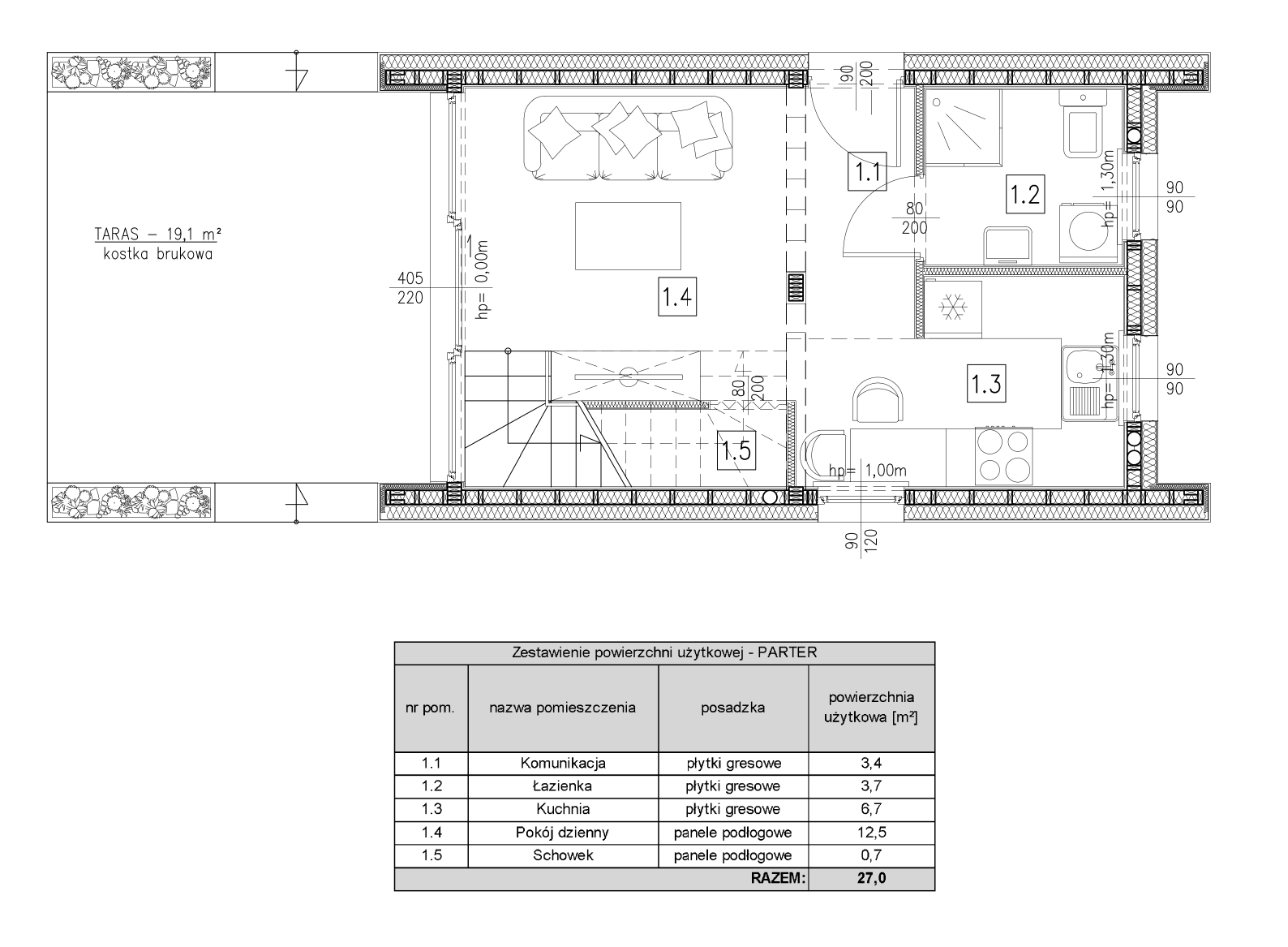
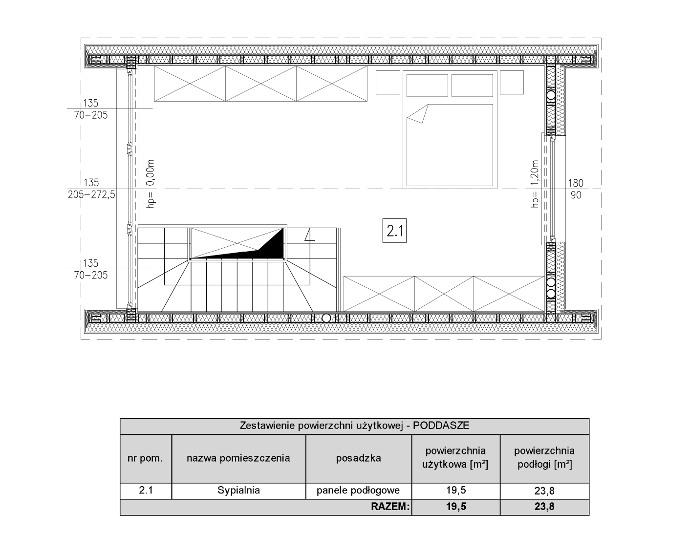
Projekt MDDOM 50 jest domem całorocznym. Wewnątrz, na parterze, przewidziany jest przestronny salon z częściowo dołączoną, otwartą kuchnią oraz łazienka. Natomiast na piętrze przygotowane jest miejsce pod sypialnię lub przestronny pokój.
Cechami charakterystycznymi projektu MDDOM 50 są duże przeszklenia gwarantujące maksymalną ilość naturalnego światła wewnątrz domu, a także nowoczesne wzornictwo i wygoda użytkowania.
Wymiary zewnętrzne: 4,9 x 8,7 m
Powierzchnia użytkowa: 46,50 m2
Powierzchnia podłóg: 50,80 m2
Powierzchnia zabudowy: 38,10 m2
Wysokość budynku: 707 cm
Wysokość parteru: 255 cm
