MDDOM 53 v2

Powierzchnia zabudowy:37.09 m²
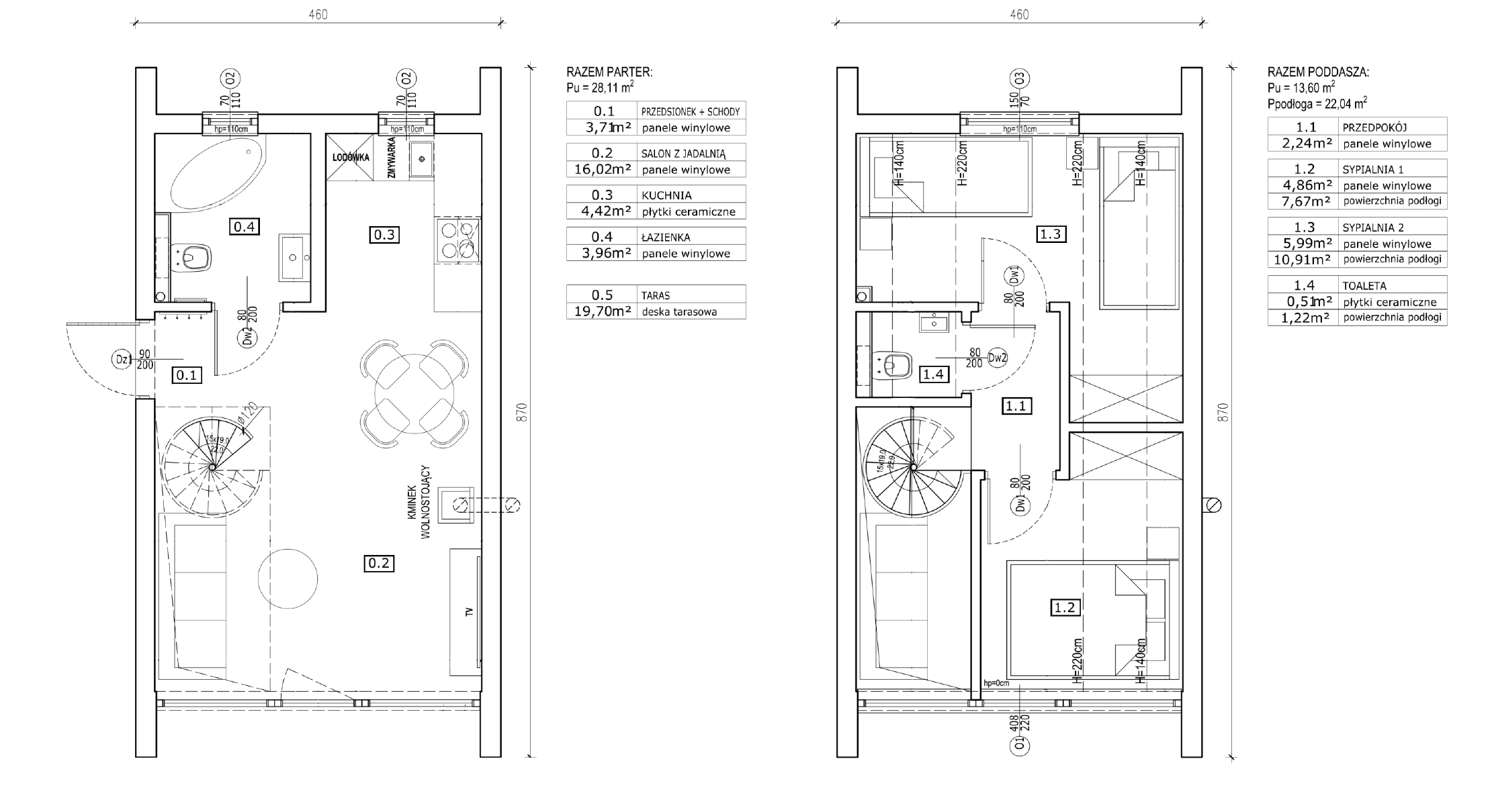
Powierzchnia użytkowa:41.71 m²
Liczba pokoi:2
Liczba garaży:0
Styl domu:, , ,

Charakterystyka

  • ✓ Posiada użytkowe poddasze

Galeria zdjęć

Opis projektu

MDDOM 53 v 2 energooszczędny dom budowany w technologii szkieletowej MDDOM®.

Jest to dom z poddaszem użytkowym w konstrukcji nowoczesnej stodoły, który jest ciekawą alternatywą dla mieszkania w bloku.

MDDOM 53 v2 jest domem całorocznym. Wewnątrz przewidziany jest przestronny salon z otwartą kuchnią oraz łazienka. Z salonu dostępne jest wyjście bezpośrednio na taras. Dodatkowo w salonie zaprojektowana została otwarta klatka schodowa wraz z otwartą przestrzenią nad częścią salonu. Na piętrze przewidziano w projekcie dwa pokoje, które mogą być wykorzystane na przykład jako sypialnie oraz dodatkowa toaleta.

Projekt MDDOM 53 v2 ma wiele oczywistych zalet, takich jak duże przeszklenia gwarantujące jasne wnętrze pełne naturalnego światła co w połączeniu z nowoczesnymi rozwiązaniami aranżacji daje dużą wygoda użytkowania.

Wymiary zewnętrzne: 4,6 x 8,7 m

Powierzchnia użytkowa: 41,71 m2

Powierzchnia podłóg: 50,15 m2

Powierzchnia zabudowy: 37,09 m2

Wysokość budynku: 652,5 cm

Wysokość parteru: 250 cm

Wysokość na piętrze: 240 cm

Formularz zgłoszeniowy

Zobacz inne projekty

MDDOM 89

Galeria zdjęć Więcej zdjęć Opis projektu Przedstawiamy funkcjonalny dom szkieletowy MDDOM 89 o powierzchni użytkowej 76,96 m² (pow. po podłodze 89,04 m²) – idealne rozwiązanie...

Read More

Dom szkieletowy Pstrążna

Galeria zdjęć Więcej zdjęć Opis projektu Inwestycja obejmowała wybudowanie domu szkieletowego parterowego o metrażu 52,74m2 w miejscowości Tworóg. Projekt domu zakładał 3 pokoje i łazienkę....

Read More

Dom szkieletowy Tworóg

Galeria zdjęć Więcej zdjęć Opis projektu Inwestycja obejmowała wybudowanie domu szkieletowego parterowego o metrażu 82,65m2 w miejscowości Tworóg. Projekt domu zakładał 3 pokoje i łazienkę....

Read More

Dom szkieletowy Gorzyce-Osiny

Galeria zdjęć Więcej zdjęć Opis projektu Inwestycja obejmowała wybudowanie domu szkieletowego parterowego o metrażu 109m2 w miejscowości Gorzyce – Osiny. Projekt domu zakładał 3 pokoje...

Read More

Dom szkieletowy Katowice 2

Galeria zdjęć Więcej zdjęć Opis projektu Inwestycja obejmowała wybudowanie domu szkieletowego parterowego o metrażu 100m2 w miejscowości Katowice. Projekt domu zakładał 2 pokoje i łazienkę....

Read More

Dom szkieletowy Orzesze 3

Galeria zdjęć Więcej zdjęć Opis projektu Inwestycja obejmowała wybudowanie domu szkieletowego piętrowego o metrażu 100m2 w miejscowości Orzesze. Projekt domu zakładał 3 pokoje i 2...

Read More
Scroll to Top