Galeria zdjęć








Opis projektu
MDDOM 67 to energooszczędny dom budowany w technologii szkieletowej MDDOM®.
Jest to dom z poddaszem użytkowym w konstrukcji nowoczesnej stodoły, który jest ciekawą alternatywą dla mieszkania w bloku.
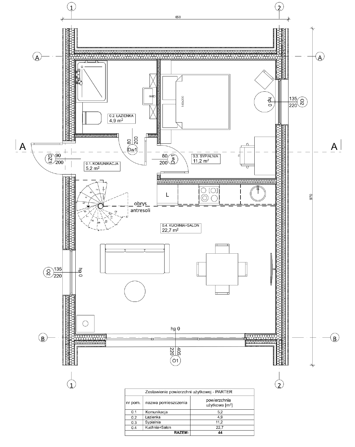
Projekt MDDOM 67 jest domem całorocznym. Wewnątrz przewidziany jest przestronny salon z jadalnią oraz aneksem kuchennym. Dostępny jest również pokój oraz łazienka. W projekcie przewidziana została także antresola wraz z dodatkowym pomieszczeniem.
Projekt MDDOM 67 jest pełen naturalnego, jasnego, dziennego światła dzięki dużym przeszkleniom, co w połączeniu z mądrymi rozwiązaniami i nowoczesnym wzornictwem daje realną wygodę użytkowania.
Wymiary zewnętrzne: 6,5 x 9,7 m
Powierzchnia użytkowa: 56,9 m2
Powierzchnia podłóg: 67 m2
Powierzchnia zabudowy: 54,33 m2
Wysokość budynku: 741 cm
Wysokość parteru: 255 cm
Wysokość na antresoli: 287 cm
