Galeria zdjęć













Opis projektu
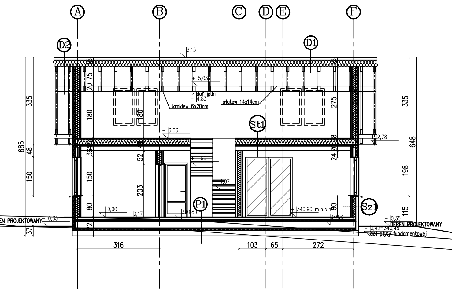
MDDOM 83 to energooszczędny dom budowany w technologii szkieletowej MDDOM®.
Projekt domu parterowego z możliwością rozbudowy poddasza użytkowego. MDDOM 83 na pewno znajdzie wielu zwolenników wsród rodzin rozwojowych, które myślą o przyszłości dzieci, ponieważ na poddaszu można zrobić całkiem pokaźne mieszkanko.
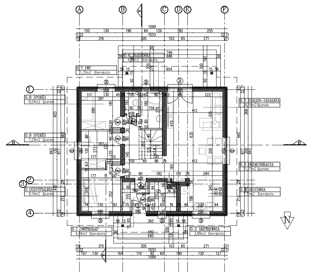
Dom podzielono na strefę dzienną i sypialnianą. W strefie dziennej znajduje się salon z jadalnią i otwartą kuchnią, natomiast strefa sypialniana składa się z 3 pokojów, łazienki i osobnej toalety.
W projekcie uwzględniono również pomieszczenie techniczne.
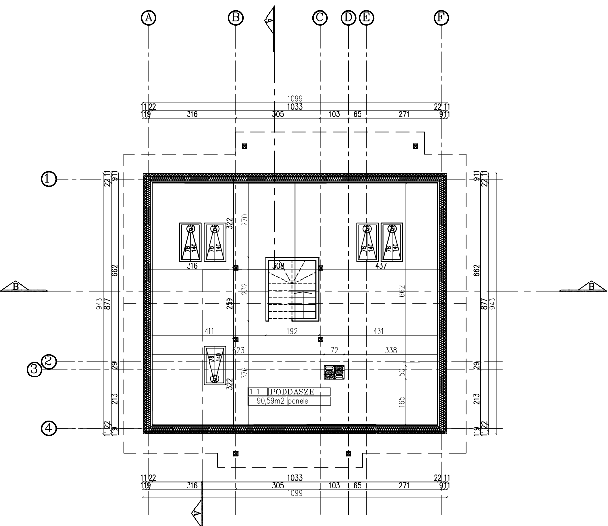
Największym i najciekawszym atutem tego projektu jest możliwość adaptacji całkiem pokaźnego i wysokiego strychu na strefę mieszkalną. Na ten cen na parterze zostało również wydzielone specjalne miejsce na schody. Przy budowie tego domu zaplanowane jest od razu wykonanie okien dachowych, tak aby przy przyszłym przekształcaniu strychu w powierzchnię mieszkalną nie trzeba było robić przeróbek dachowych.
Pomieszczenie techniczne
Powierzchnia użytkowa 83,14m2
Pokaźny strych pod adaptacje
Salon z jadalnią
Otwarta kuchnia
3 sypialnie
łazienka
Osobna toaleta
