MDDOM 98

Powierzchnia zabudowy:67.70 m²
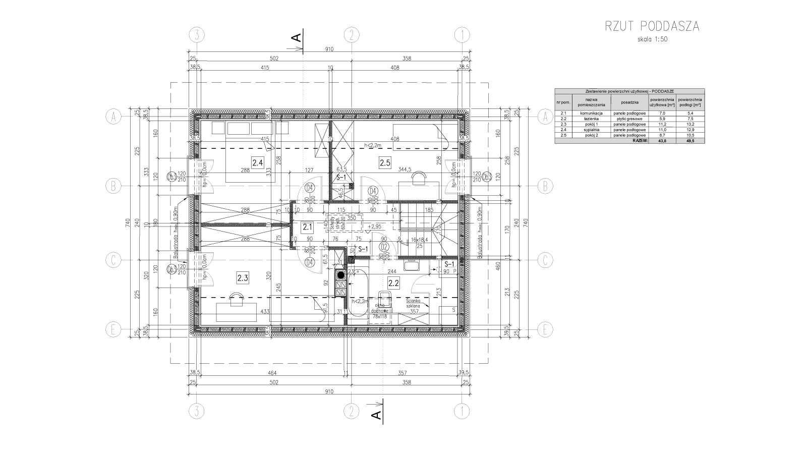
Powierzchnia użytkowa:92.50 m²
Liczba pokoi:4
Liczba garaży:0
Styl domu:, , ,

Charakterystyka

  • ✓ Posiada użytkowe poddasze

Galeria zdjęć

Opis projektu

MDDOM 98 to energooszczędny dom budowany w technologii szkieletowej MDDOM®. 

Projekt domu z poddaszem użytkowym, który spełnia potrzeby większości osób nastawionych na średniej wielkości dom.

Otwarta kuchnia wraz ze spiżarką dają możliwość wygodnej aranżacji. Przestronny salon z kominkiem sprawi, iż wnętrze stanie się bardziej przytulne.

Praktycznym rozwiązaniem jest uwzględnienie w projekcie dwóch łazienek – zarówno na dole jak i na górze.

Strefa sypialniana to przede wszystkim 3 ustawne pokoje na poddaszu oraz jeden dodatkowy pokój na parterze. Przestrzeń można wykorzystać także jako pokój dla gości lub gabinet.

Szczegóły projektu:

2 łazienki

Powierzchnia użytkowa: 92,5m2

Powierzchnia po podłodze: 98,2m2

Powierzchnia zabudowy: 67,7m2

Salon

Otwarta kuchnia ze spiżarnią

Dodatkowy pokój na parterze

3 sypialnie na poddaszu

Formularz zgłoszeniowy

Zobacz inne projekty

MDDOM 89

Galeria zdjęć Więcej zdjęć Opis projektu Przedstawiamy funkcjonalny dom szkieletowy MDDOM 89 o powierzchni użytkowej 76,96 m² (pow. po podłodze 89,04 m²) – idealne rozwiązanie...

Read More

Dom szkieletowy Pstrążna

Galeria zdjęć Więcej zdjęć Opis projektu Inwestycja obejmowała wybudowanie domu szkieletowego parterowego o metrażu 52,74m2 w miejscowości Tworóg. Projekt domu zakładał 3 pokoje i łazienkę....

Read More

Dom szkieletowy Tworóg

Galeria zdjęć Więcej zdjęć Opis projektu Inwestycja obejmowała wybudowanie domu szkieletowego parterowego o metrażu 82,65m2 w miejscowości Tworóg. Projekt domu zakładał 3 pokoje i łazienkę....

Read More

Dom szkieletowy Gorzyce-Osiny

Galeria zdjęć Więcej zdjęć Opis projektu Inwestycja obejmowała wybudowanie domu szkieletowego parterowego o metrażu 109m2 w miejscowości Gorzyce – Osiny. Projekt domu zakładał 3 pokoje...

Read More

Dom szkieletowy Katowice 2

Galeria zdjęć Więcej zdjęć Opis projektu Inwestycja obejmowała wybudowanie domu szkieletowego parterowego o metrażu 100m2 w miejscowości Katowice. Projekt domu zakładał 2 pokoje i łazienkę....

Read More

Dom szkieletowy Orzesze 3

Galeria zdjęć Więcej zdjęć Opis projektu Inwestycja obejmowała wybudowanie domu szkieletowego piętrowego o metrażu 100m2 w miejscowości Orzesze. Projekt domu zakładał 3 pokoje i 2...

Read More
Scroll to Top