Galeria zdjęć







Opis projektu
AMOR 3 to energooszczędny dom budowany w technologii szkieletowej MDDOM®.
Projekt domu parterowego który spełnia potrzeby nawet 4 osobowej rodziny. Wyglądem nawiązuje do stylu nowoczesnego i idealnie wpisze się w trendy nowo powstających osiedli.
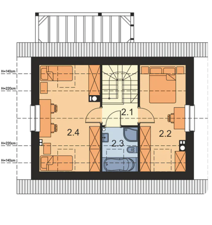
Klasyczna bryła budynku pozwala na zmniejszenie całkowitych kosztów budowy. Dużym atutem jest bardzo dobre wykorzystanie niewielkiej przestrzeni W jej ramach zmieszczono 3 przytulne pokoje. W projekcie uwzględniono również dwie łazienki i toalety.
Stosunkowo niewielki dom może być atrakcyjnie wykończony nie tylko w środku. Elewację budynku można bowiem wykończyć zarówno w tradycyjnym, jak i nowoczesnym stylu. Dzięki temu może być ona dostosowana do innych zabudowań w okolicy.
Min. szer. i dł. działki: 17,04 x 16,49 m.
Powierzchnia podłóg: 86,22 m2
Powierzchnia użytkowa: 68,75 m2
Powierzchnia zabudowy: 61,83 m2
Wysokość budynku: 7,62 m
Kąt nachylenia dachu: 40°
Pokoje (bez salonu): 3
Stanowiska garażowe: 0
Łazienki + toalety: 2

