Galeria zdjęć











Opis projektu
Realizacja w Wodzisławiu Śląskim to energooszczędny dom budowany w technologii szkieletowej MDDOM®.
Jest to dom z poddaszem użytkowym w konstrukcji nowoczesnej stodoły, który jest ciekawą alternatywą dla mieszkania w bloku.
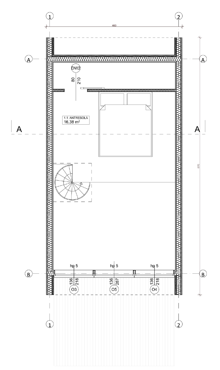
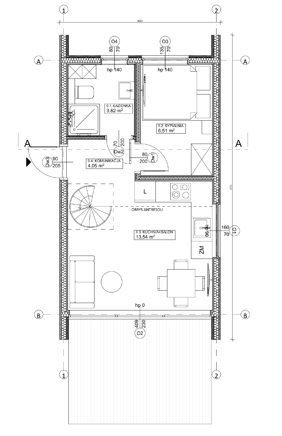
Wewnątrz, na parterze przewidziany został przestronny salon z aneksem kuchennym, a także sypialnia oraz łazienka. W projekcie jest także antresola, na której dostępna jest kolejna sypialnia.
Realizacja ta oparta na projekcie MDDOM 44 v 2 to również duże przeszklenia, dzięki którym wnętrze domu wypełnia naturalne światło przez większość dnia. Nowoczesny sposób, w jaki został zaprojektowany dom zapewnia również wygodę jego użytkowania.
Szczegóły:
Wymiary zewnętrzne: 4,6 x 8,7 m
Dom rekreacji indywidualnej
Powierzchnia użytkowa: 38,01 m2
Powierzchnia podłóg: 44,7 m2
Powierzchnia zabudowy: 35,26 m2
Wysokość budynku: 630 cm
Wysokość parteru: 234 cm
Wysokość na antresoli: 228 cm
