Galeria zdjęć





Opis projektu
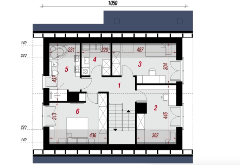
Projekt domu w technologii drewnianej szkieletowej.

| Powierzchnia zabudowy: | 85.43 m² |
| Powierzchnia użytkowa: | 113.2 m² |
| Liczba pokoi: | 4 |
| Liczba garaży: | 0 |
| Styl domu: | Nowoczesny, Wygodny |





Projekt domu w technologii drewnianej szkieletowej.
Galeria zdjęć Więcej zdjęć Opis projektu Przedstawiamy funkcjonalny dom szkieletowy MDDOM 89 o powierzchni użytkowej 76,96 m² (pow. po podłodze 89,04 m²) – idealne rozwiązanie...
Galeria zdjęć Więcej zdjęć Opis projektu Inwestycja obejmowała wybudowanie domu szkieletowego parterowego o metrażu 52,74m2 w miejscowości Tworóg. Projekt domu zakładał 3 pokoje i łazienkę....
Galeria zdjęć Więcej zdjęć Opis projektu Inwestycja obejmowała wybudowanie domu szkieletowego parterowego o metrażu 82,65m2 w miejscowości Tworóg. Projekt domu zakładał 3 pokoje i łazienkę....
Galeria zdjęć Więcej zdjęć Opis projektu Inwestycja obejmowała wybudowanie domu szkieletowego parterowego o metrażu 109m2 w miejscowości Gorzyce – Osiny. Projekt domu zakładał 3 pokoje...
Galeria zdjęć Więcej zdjęć Opis projektu Inwestycja obejmowała wybudowanie domu szkieletowego parterowego o metrażu 100m2 w miejscowości Katowice. Projekt domu zakładał 2 pokoje i łazienkę....
Galeria zdjęć Więcej zdjęć Opis projektu Inwestycja obejmowała wybudowanie domu szkieletowego piętrowego o metrażu 100m2 w miejscowości Orzesze. Projekt domu zakładał 3 pokoje i 2...